Appearance
Installation du materiel
Communication entre l'afficheur STONE HMI, Arduino MEGA et action des casiers du B.R.A.S.
TIP
Il est important de respecter cette étape. Sauf si vous savez ce que vous faites.
Equipement :
Liste des équipements nécessaire pour le bon fonctionnement.
- Arduino Mega 2560 DATASHEET
- STONE HMI
- Porte logique inverseur - 4069
- Régulateur 12v -> 9v - L7809CV
- Imprimante thermique TTL - csn-a2
- Shield Arduino - ASMI1-19
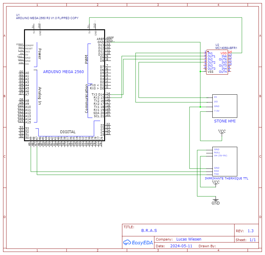
Branchement
Ceci est le branchement entre les différents composants
Details
Pour avoir plus d'informations sur le 4069 vous pouvez alors simplement Cliquez ici
Arduino -> 4069
- [15] Arduino <- [2] 4069
- [14] Arduino -> [3] 4069
- [GND] Arduino -> [7] 4069
- [5V] Arduino -> [14] 4069
HMI -> 4069
Le STONE HMI est alimenté en 7.5 volt voir plus bas
- [DI] HMI <- [4] 4069
- [DO] HMI -> [1] 4069
HMI -> Arduino
- [GND] HMI - [GND] Arduino
Moteur -> Arduino
- A venir...
Imprimante -> Arduino
[5V] Imprimante -> [5V] Arduino [GND] Imprimante -> [GND] Arduino [TX] Imprimante -> [47] Arduino [RX] Imprimante -> [49] Arduino
Arduion -> LED
N'est plus à jours
L'installation d'une LED ne fonctionne plus depuis la version BETA du code.
Information pour <1.1.33-beta
L'installation d'une LED n'est pas obligatoire. Si une LED est placé, elle ne servira qu'à indiquer visuellement qu'une trame est reçu par l'arduino.
La valeur de la résistance pour la LED dépant du modèle utiliser. Mais il est courant d'utiliser une résistance de 220 Ohms.
- [2] ARDUINO -> LED
Rendu
Rendu visuel
Branchement de l'arduino mega avec le HMI avec entre le 4069
Schéma de cablage complet
Schéma de connexion entre tous les composants. (Représentation global du Shield ASMI1-19) 
Schéma de cablage easyEDA
Schéma de cablager entre le STONE HMI, arduino, 4069, Imprimante
